Zum Inhalt springen
blauer Teppichfußboden, weiße Wände, braune Holztür, weißer Heizkörper unter Fenster, grüne Fensterrahmen, Rauchwarnmelder an Decke
brauner Teppichfußboden, weiße Wände, weißer Heizkörper unter Fenster, grüne Holzfensterrahmen, braune Zimmertür
weiße Wände, Dachschräge, braunes Dachschrägfenster, braune Tür, brauner Teppichfußboden, braunes Geländer
brauner Laminatboden, Durchgang zur Küche, weißer Fliesenboden angrenzend, weiße Wände, Fliesenspiegel in Küche, braune Holztür Richtung Flur, weißer Heizkörper neben Tür in Küche
Balkon, grauer Plattenboden, graues Stahlgeländer, Ausblick ins Gebirge (Berge, grüne Bäume, Nachbarhaus)
brauner Teppichfußboden, weiße Wände, Dachschräge, 2 Holzdachflächenfenster, braune Tür
brauner Laminatfußboden, weiße Wände, grüne Holzrahmenfenster, weiße Heizkörper unter Fenster, grüne Balkontür
weiße Fußbodenfliesen, weiße Wandfliesen, Dachschräge, grünes Holzrahmenfenster, weißer Waschbecken mit Mischbatterie, weiße Badewanne, braune Zimmertür
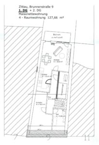
Grundriss 1. DG
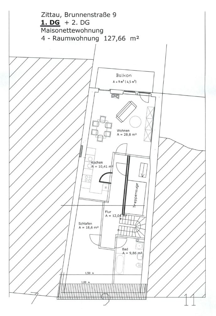
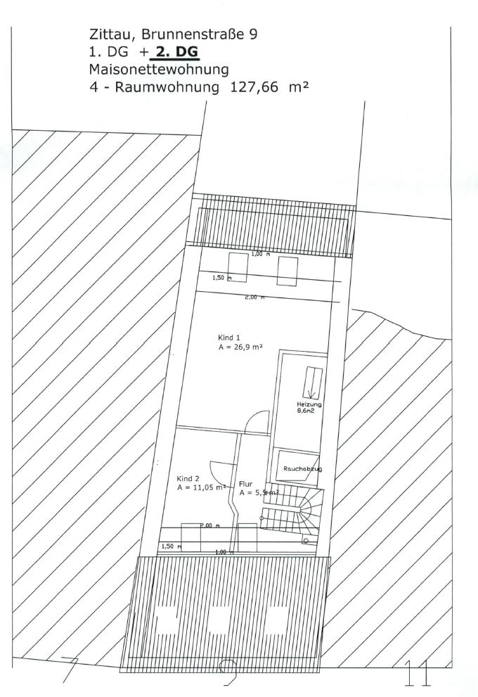
Grundriss 2. DG

Details Alles Wichtige im Überblick

WE-Nr.: 7386.1.4
Straße: Brunnenstraße 9
PLZ, Ort: 02763 Zittau
Größe: ca. 127.66 m2
Etage: 3. OG
Räume: 1
Nettokaltmiete: ca. 765,96 €
Nebenkosten: 330,00
Vermietbar ab: 01.04.2026
Kaution: 3 Monatskaltmieten
Kategorien: Familien
Balkon: Ja
Kfz-Stellplatz/Garage: Ja
Bad mit Wanne
Boden: Fliesen, Kunststoff
Zentralheizung
Befeuerung: Gas

Bemerkung Noch mehr Infos zu Ihrem neuen Zuhause

Zur Vermietung steht eine helle, gemütliche 4-Raumwohnung mit 127,66 m² im Stadtzentrum. Diese geräumige Maisonett-Wohnung verfügt über einen Balkon, der über das Wohnzimmer zu erreichen ist. Vom Wohnzimmer gelangt man direkt in die offene Küche. Die Küche und das Bad sind mit Bodenfliesen ausgestattet. In der restlichen Wohnung soll ein freundlicher Laminatboden verlegt werden, wo der Mietinteressent gern seine Wünsche äußern kann. Das Bad verfügt über eine Badewanne und einem Waschmaschinenanschluss. Die Anmietung eines Stellplatzes ist für den Mietpreis von 15,00 Euro monatlich möglich.

Lage: Der Marktplatz befindet sich in unmittelbarer Nähe. Sie wohnen in zentraler Lage mit vielen Einkaufsmöglichkeiten, welche zu Fuß in nur wenigen Minuten zu erreichen sind. Ein Kino, zahlreiche Restaurants und Bars sowie das Stadtbad bieten verschiedenste Freizeitunternehmungen.
Immobilienverwalterin
Janine Kipsch