Zum Inhalt springen
Skizze der Außenansicht Südseite
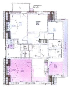
Grundriss der Immobilie
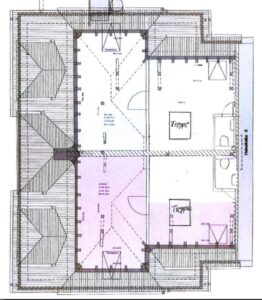
Grundriss der Immobilie

Details Alles Wichtige im Überblick

WE-Nr.: 41235.1.4
Straße: Hainstraße 8
PLZ, Ort: 02763 Zittau
Größe: ca. 93.35 m2
Etage: 2
Räume: 2
Nettokaltmiete: ca. 887,00 €
Nebenkosten: 112,00 €, zzgl. Heizkosten in Höhe von ca. 75,00 €
Vermietbar ab: 01.04.2026
Kaution: ja
Kfz-Stellplatz/Garage: Ja
Befeuerung: Alternativ

Bemerkung Noch mehr Infos zu Ihrem neuen Zuhause

Dieses großzügige und moderne 2- oder 3-Raum-Maisonette-Studio in bester Lage von Zittau Süd bietet ein perfektes Zuhause für Paare oder Mieter, die Wert auf Komfort und eine großzügige Raumaufteilung legen. Mit ihrer hochwertigen Ausstattung und der Nähe zur Natur wird diese Wohnung Sie begeistern. Sie besteht aus Wohnzimmer mit Gaupe, Küche, Esszimmer sowie Schlafzimmer - nach Wunsch kann ein weiteres Zimmer integriert werden - und bietet ausreichend Platz für Ihre individuellen Bedürfnisse. Zu dem bietet diese Wohnung ein Bad mit Dusche und ein zweites WC ist in der oberen Etage. Außerdem steht Ihnen ein Abstellraum auf halber Treppe sowie ein Keller zur Verfügung. Eine Wechselsprechanlage und Multimediaanschluss mit bis 1000 Mbit/s sind vorhanden.

Energieeffiziente und zukunftsorientierte Sanierung: Neue Fenster, Wärmedämmung und modernste Haustechnik sorgen für geringe Energiekosten und ein angenehmes Raumklima. Die Wohnungen werden über eine Wärmepumpe beheizt, was nicht nur die Umwelt schont, sondern auch die Betriebskosten senkt. Zusätzlich sorgt ein Balkonkraftwerk für nachhaltige Stromerzeugung – ein Schritt in Richtung energetischer Unabhängigkeit.

Einziehen, wohlfühlen, nachhaltig leben – diese Wohnungen bieten alles, was modernes Wohnen ausmacht.
Simone Schulze
Ansprechpartnerin
Simone Schulze
Tel.: 03583 750 109